Calculette
Partager
Ancien HOTEL RESTAURANT à restaurer entiérement
Description de l'offre
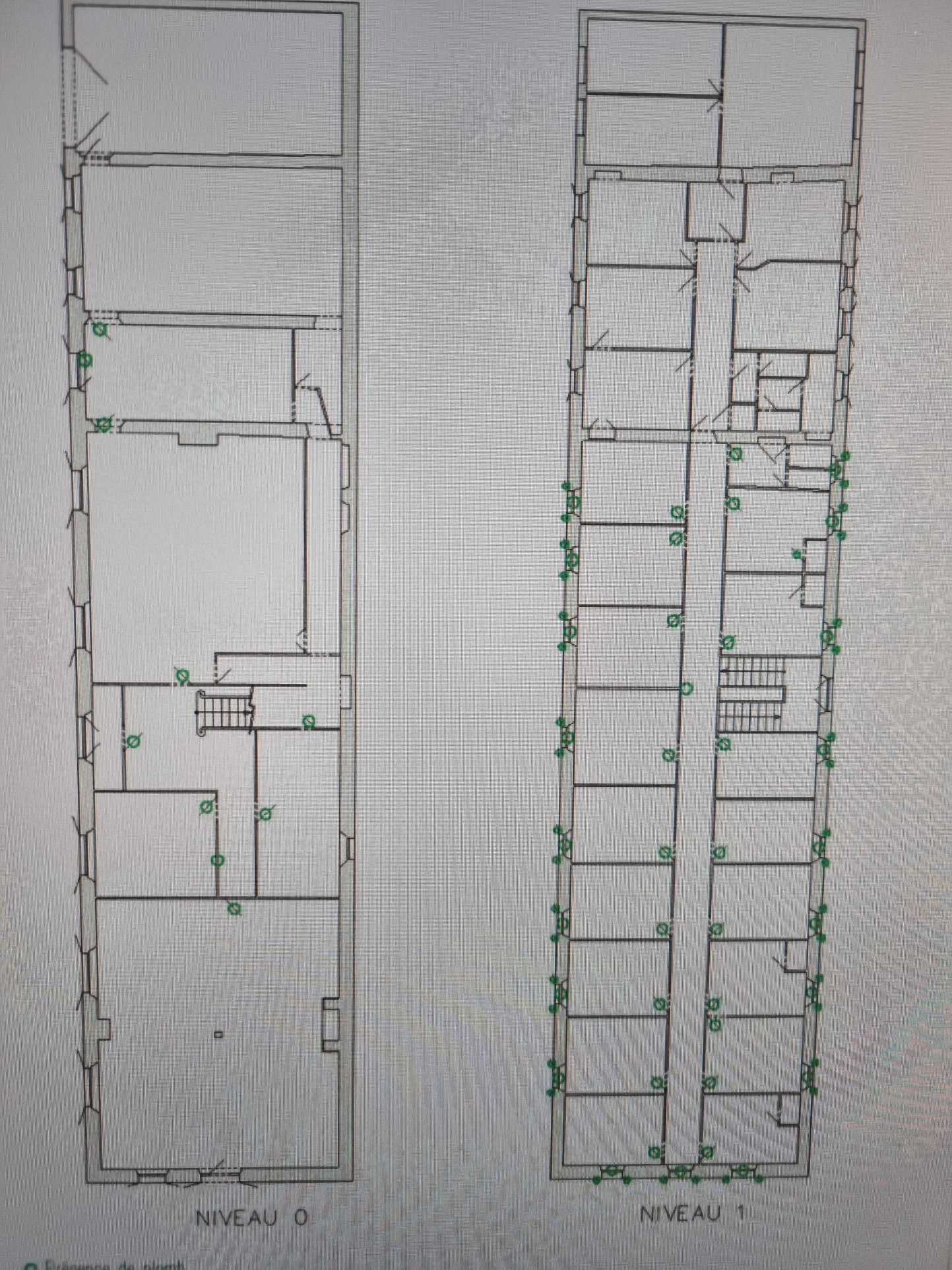
Ancien Moulin seigneurial ,au XIX siècle transformé en usine ,successivement filature de soie,fabrique de crosses de fusils,fabrique de pâtes alimentaires et par la suite au XX ème siècle transformé en Hôtel restaurant ,offrant une surface totale de 700 m² environ sur 3140 m² de terrain,idéal pour un projet de gites ou chambres d'hôtes ou autres...............CONTACT:Mme Gendronneau 06 07 76 97 04 Les Honoraires sont à la charge des vendeurs.
Descriptif du bien
- Code postal : 26560
- Surface habitable (m²) : 620 m²
- surface terrain : 3 140 m²
- Surface loi Carrez (m²) : 620 m²
- Nombre de chambre(s) : 20
- Nombre de pièces : 30
- Nombre de niveaux : 2
- Vue : dégagée
- Terrasse : OUI
- Nombre de garage : 1
- Exposition : EST-OUEST
- Copropriété : NON
- Prix de vente honoraires TTC inclus : 165 000 €
- Taxe foncière annuelle : 1 567 €
La ville de Lachau (26560)
Nous Contacter
Afficher le téléphone 06 07 76 97 04Les informations recueillies sur ce formulaire sont enregistrées dans un fichier informatisé par La Boite Immo agissant comme Sous-traitant du traitement pour la gestion de la clientèle/prospects de l'Agence / du Réseau qui reste Responsable du Traitement de vos Données personnelles.
La base légale du traitement repose sur l'intérêt légitime de l'Agence / du Réseau.
Elles sont conservées jusqu'à demande de suppression et sont destinées à l'Agence / au Réseau.
Conformément à la loi « informatique et libertés », vous disposez des droits d’accès, de rectification, d’effacement, d’opposition, de limitation et de portabilité de vos données. Vous pouvez retirer votre consentement à tout moment en contactant directement l’Agence / Le Réseau.
Consultez le site https://cnil.fr/fr pour plus d’informations sur vos droits.
Si vous estimez, après avoir contacté l'Agence / le Réseau, que vos droits « Informatique et Libertés » ne sont pas respectés, vous pouvez adresser une réclamation à la CNIL.
Nous vous informons de l’existence de la liste d'opposition au démarchage téléphonique « Bloctel », sur laquelle vous pouvez vous inscrire ici : https://www.bloctel.gouv.fr
Dans le cadre de la protection des Données personnelles, nous vous invitons à ne pas inscrire de Données sensibles dans le champ de saisie libre.
Ce site est protégé par reCAPTCHA, les Politiques de Confidentialité et les Conditions d'Utilisation de Google s'appliquent.
